Overview
- 1 - 3 Bedrooms
- 684.00 ft2
Description
Introduction
Sokoon 5 at Aljada, a promising new residential project by Arada Developer, is poised to transform the living experience within Sharjah. This unique development, nestled within the vibrant Naseej District, offers a range of 1, 2, and 3 bedroom apartments, each designed to encapsulate the essence of comfort, innovation, and vibrant community living.
Prime Location
Located in the heart of the new Sharjah downtown, Sokoon 5 enjoys a prime location that puts everything you need within easy reach. This all encompassing development serves as the perfect place to live, work, entertain, and relax. Its strategic location ensures easy access to major road networks, providing hassle free navigation within the city.
Amenities
24×7 Security
Beach Access
Fitness Center
Green Surrounding
Gymnasium
Infinity Pool
Jogging Trails
Kids Play Area
Marina & Yacht Club
Parks and Leisure Areas
Restaurants
Retail Outlets
Spa-and-sauna
Spa and Sauna Vibrant Community Living
Sokoon 5 is not just a place to call home; it’s a destination where beautiful landscaped areas, hotels, shopping, and dining venues are steps away from your doorstep. The development is a haven for thinkers, collaborators, and entrepreneurs, celebrating art, culture, and innovation.
Unit Types and Sub Communities
1 Bedroom Apartments : Size ranging from 63 to 72 sqft
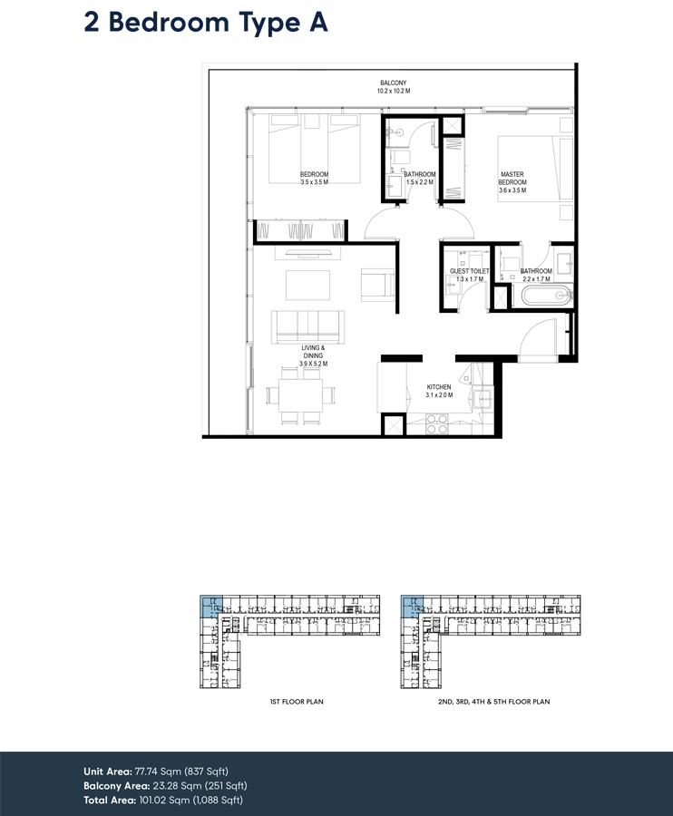
2 Bedroom Apartments : Size ranging from 77 to 111 sqft
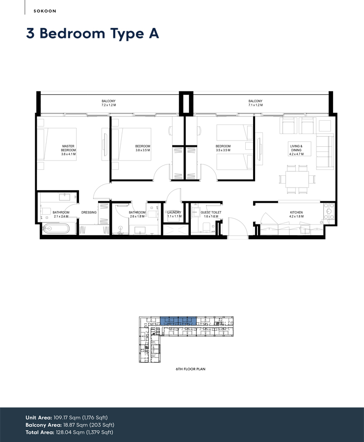
3 Bedroom Apartments : Size ranging fromt 109 to 165 sqft
Studio Apartments Sized at 100 sqft
In conclusion
Sokoon 5 offers a unique blend of serenity and vibrancy, making it a much sought after residential destination. With its prime location, unique features, and various housing options, it is set to redefine the meaning of community living in Sharjah. Whether you’re a young professional seeking a vibrant community or a family in search of a peaceful haven, Sokoon 5 is the place to be.





